
부동산경매정보 이지옥션
법원낙찰경매컨설팅 ★
이지옥션 부동산경매사이트 회원가입은 무료입니다 :)
홈페이지에 들리셔서 전국 많은 매물정보를 확인하세요 !
◈ 전국 대법원경매정보를 무료로 제공하는 이지옥션의 경매전문가 김병기 이사의 블로그에 방문해주셔서 감사합니다. ◈
♣ 부동산경매사이트 사건정보


어려운 경매를 확실하게 낙찰 받아드리겠습니다.
다양한 능력과 경험이 복합적으로 필요한 법원경매낙찰은
기본적으로 권리분석 능력과 매물에 대한 분석력,
현장에서의 대응력과 빠른 판단력이 필요합니다.
낙찰경험이 많은 부동산경매전문법인 이지옥션
경매전문가 김병기 이사와 함께 하세요.
경매컨설팅 관련 상담이 필요하신
고객님께서는 연락주시기 바랍니다.

충북 청주시 서원구 사창동 385-11에 있는 근린주택 경매 물건입니다.
최선순위 설정일자는 2015.03.12 근저당권 (으)로 파악됩니다.
사건번호는 2021타경58864이며 청주지방법원에서 경매가 진행됩니다.
감정가격은 1,430,045,230원, 2회 유찰되어 최저입찰가는 915,229,000원(감정가 64%)입니다.
입찰보증금은 (10%) 91,522,900원을 준비하시면 됩니다.
| 소재지 | 충청북도 청주시 서원구 사창동 385-11 | ||||
| 입찰기일 | 2022.07.19(화) 10:00 | 유찰횟수 | 2회 | 진행상태 | 유찰 |
| 사건번호 | 2021타경58864 | 물건번호 | 1 | 입찰법원 | 청주지방법원 |
| 감정평가액 | 1,430,045,230원 | 최저입찰가 | (64%) 915,229,000원 | 입찰보증금 | (10%) 91,522,900원 |
| 물건종류 | 근린주택 | 건물면적 | 1,215.99㎡(367.84평) | 토지면적 | 473.00㎡(143.08평) |
사건번호 : 2021 타경 58864 (청주지방법원)
사건번호를 말씀해 주시면 빠른 상담이 가능합니다.
감정평가현황
| 구분 | 주소 | 구조/용도/대지권 | 면적/비고 |
| 토지 |
사창동 385-11 | 대 | 473 ㎡ (143.08평) |
| 건물 |
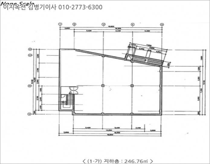
내수동로102번길 52-2 | 지하층 근린생활시설 | 246.76 ㎡ (74.64평) |
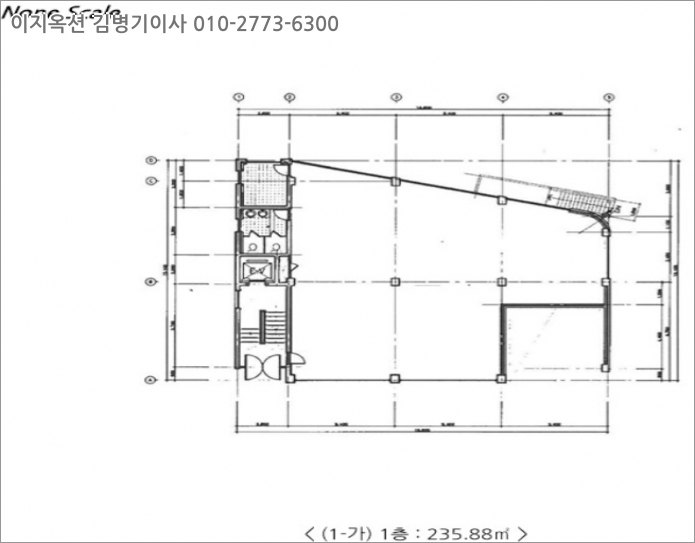
| 내수동로102번길 52-2 | 1층 근린생활시설 | 235.88 ㎡ (71.35평) | |
| 내수동로102번길 52-2 | 2층 고시텔 | 250.76 ㎡ (75.85평) | |
| 내수동로102번길 52-2 | 3층 고시텔 | 250.76 ㎡ (75.85평) | |
| 내수동로102번길 52-2 | 4층 주택 | 218.83 ㎡ (66.20평) | |
| 제시외건물 | 사창동 385-11 | 실외기실 등 | 6 ㎡ (1.82평) |
| 내수동로102번길 52-2 | 보일러실 등 | 7 ㎡ (2.12평) |
[교통상황] 본건까지 제반차량 접근 가능하며, 인근에 버스정류장이 소재하는 등 전반적인 교통상황은 보통시됩니다.
[형태/이용상태] 부정형 완경사로서, 주상용 건부지로 이용 중입니다.
[도로상태] 남동측으로 노폭 약 6미터 내외의 아스팔트 포장도로와 접합니다.
[토지이용계획] 도시지역, 제1종일반주거지역, 고도지구(15m이하), 시가지경관지구, 가축사육제한 구역(가축사육전부제한구역)<가축분뇨의 관리 및 이용에 관한 법률>, 상대보호 구역(충북대학교,청주교육지원청체육건강과(043-299-3191-3196))<교육환경 보호에 관한 법률>입니다.
[제시외 물건] 해당사항 없습니다.
[공부와의 차이] 해당사항 없습니다.
[참고사항] 해당사항 없습니다. [건물구조] 기호(1-가)는 2002.03.26.자로 사용승인된 철근콘크리트구조 스라브지붕 지하1층- 지상4층 건물로서, 현상 및 관리상태는 보통시 되며, - 외 벽 : 화강성 붙임 및 드라이비트 등 마감 - 내 벽 : 벽지도배 및 페인트 등 마감 - 창 호 : 하이섀시 창호 등입니다.
[이용상태] 본건 기호(1-가)는 식당 및 고시텔,다가구주택 등으로 이용 중입니다.
- 지하 1층 : 식당, 주방, 체력단련실, 화장실, 샤워실, 창고 등 - 지상 1층 : 사무실, 고시텔(18실), 화장실, 샤워실 등 - 지상 2층 : 고시텔(25실). 화장실, 샤워실 등 - 지상 3층 : 고시텔(22실), 화장실, 샤워실 등 - 지상 4층 : 주택(방, 주방, 욕실겸 화장실), 주택(방2, 주방 겸 거실, 욕실 겸 화장실), 주택(방3, 주방, 거실, 요실 겸 화장실2) 등 [설비내역] 난방설비, 위생 및 급배수설비, 승강기설비 등이 되어 있습니다.
[부합물/종물] ㉠ 판넬조 판넬지붕, 약 7㎡, 보일러실 ㉡ 판넬조 판넬지붕, 약 6㎡ 실외기실 [공부와의 차이] 본건 기호(1-가) 지상1층-3층의 공부상 용도는 ‘일반음식점‘이나 ‘고시텔 및 사무실 등"으로 이용 중입니다.
[참고사항] 해당사항 없습니다.
등기부현황 (토지)
| 구분 | 성립일자 | 권리소유 | 권리자 | 권리금액 | 인수/소멸 |
| 1 | 소유권 | (OOOOO | 소멸 | ||
| 2 | 2015년3월12일 | 근저당권 | 성OOOOOOOOO | 702,000,000원 | 소멸기준 |
| 3 | 2015년3월12일 | 근저당권 | 성OOOOOOOOO | 78,000,000원 | 소멸 |
| 4 | 2015년11월4일 | 근저당권 | 성OOOOOOOOO | 156,000,000원 | 소멸 |
| 5 | 2020년8월11일 | 근저당권 | 조OO | 100,000,000원 | 소멸 |
| 6 | 2021년5월20일 | 근저당권 | 대OOOOOO | 700,000,000원 | 소멸 |
| 7 | 2021년11월8일 | 압류 | 청OO | 소멸 | |
| 8 | 2022년1월3일 | 임의경매 | 대OOOOOO | 소멸 |
등기 현황 (건물)
| 구분 | 성립일자 | 권리소유 | 권리자 | 권리금액 | 인수/소멸 |
| 1 | 소유권 | (OOOOO | 소멸 | ||
| 2 | 2015년3월12일 | 근저당권 | 성OOOOOOOOO | 702,000,000원 | 소멸기준 |
| 3 | 2015년3월12일 | 근저당권 | 성OOOOOOOOO | 78,000,000원 | 소멸 |
| 4 | 2015년11월4일 | 근저당권 | 성OOOOOOOOO | 156,000,000원 | 소멸 |
| 5 | 2020년8월11일 | 근저당권 | 조OO | 100,000,000원 | 소멸 |
| 6 | 2021년5월20일 | 근저당권 | 대OOOOOO | 700,000,000원 | 소멸 |
| 7 | 2022년1월3일 | 임의경매 | 대OOOOOO | 소멸 |
사건번호 : 2021 타경 58864 (청주지방법원)
사건번호를 말씀해 주시면 빠른 상담이 가능합니다.
충북 청주시 서원구 사창동에 있는 근린주택경매 물건
사건번호 2021타경58864
청주지방법원에서 경매 진행
감정가격 1,430,045,230원,최저입찰가 915,229,000원









※ 대법원경매물건을 일부 올린글이라 시간이지나면 이미 매각.변경.취소등되어 있을수도
있으니 이지옥션사이트에서 진행중인 전국경매물건을 확인하세요!!!

신속한 경매컨설팅 낙찰을 위해
이지옥션 김병기 이사와 함께하세요 !
#※ 이지옥션 홈페이지 접속은 위 이미지를 클릭하시면 방문하실 수 있습니다. ※
'♣ 주택,다가구경매 > 수도권 外 주택다가구' 카테고리의 다른 글
| 김해시 다가구주택경매물건 ⁿ진영읍 다가구주택급매 §2021타경6026 (0) | 2022.08.03 |
|---|---|
| <2회유찰>음성군 금왕읍 쌍봉리 163-3 음성주택경매 #2021타경32865 최저가5억대 (0) | 2022.07.15 |
| 이지옥션 무료경매사이트 δ전주 다가구주택경매 덕진구 우아동2가 다가구주택급매 2021타경35214 (0) | 2022.07.12 |
| <근린주택경매>대전 대덕구 비래동 115-19 근린주택경매 2021 타경 6266 (0) | 2022.07.11 |
| <이지옥션 김병기> 창원시 주택경매 의창구 북면 마산길42번길 136-4 #주택매매 ♣ 2016타경12607 (0) | 2022.07.04 |



